29 July 2025
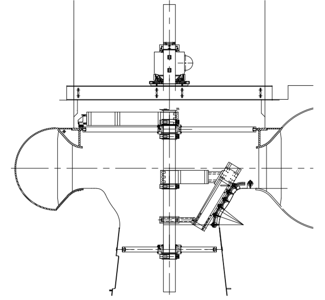
A template profiling device was fitted onto the boring bar and the runner chamber diameter was reprofiled to achieve the high tolerance and a high-quality surface finish. (shown in picture)
The template for this difficult profile comprised two convex and one concave radii to accommodate the end profile of the Deriaz angled runner blades.

Get in contact
How can we help you? We offer a 24/7 worldwide emergency response. Please select from the options below to contact us.
Submit an Enquiry Office Locations Quick Contacts Careers